– Holly Emerson
- Holly Emerson
The Emerson family has lived in historic Naglee Park in San Jose, California for over ten years. Holly and Nick Emerson are embracing the challenge of raising four children, preparing to take care of two sets of aging grandparents, oh, and a boxer named Rusty.
In the summer of 2017, the family got some news that they’d soon need to be looking into long term care for Holly’s elderly parents, specifically her father, that was beginning to struggle with mobility and independence and needed care. Holly and Nick immediately began researching care facilities, home care assistance, and ran into their first major hurdle. Costs.
The Emersons needed alternatives. The obvious solution was to invite Holly’s parents to live with them in Naglee Park. There were many benefits such as: keeping the family closer and of course being able to keep an eye on dad. But with four growing kids and one bathroom in their historic home, the plan would be hard to sustain without being overwhelmed by how cramped they would feel and the lack of space.
The Emersons still needed options. They needed a long-term, family-integrated plan to house relatives while also making an investment in their property. Enter Acton ADU.

Building any home in California is complex. Between property feasibility, local build codes, navigating planning and building departments, engineering requirements, and of course designing and building a beautiful and functional space–there’s lots to think about. Accessory Dwelling Units (ADUs) add an additional layer, a litany of new challenges that need to be navigated..
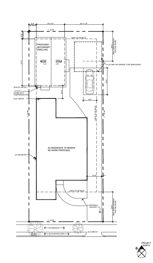
In the case of the Emersons, there was one more challenge to add to the complexity. Their Naglee Park home is located in a San Jose Historic District, with its own set of requirements and regulations on top of the ever-changing, city jurisdictional ordinances and ADU regulations.
The Emerson family needed a partner. So, we got the call.

The first stage of the Emerson ADU project was to assess the project motivations so we’d have a clear idea of what to include in the design of their backyard home to maximize the value and function for the family. We perform this process in our Project Consultations.
Once the motivations are confirmed, our design team does a full assessment of the property. We shore up measurements, review existing conditions, and prepare to present a basic plan to the city for a top-level thumbs up. We follow a pretty conservative process at the beginning since we we want to provide certainty and not waste time.
The Emersons had a few things going for them. A spacious yard and easy access to the future build site via a rear drive way, but also had some challenges.
First off, the Emersons had a free standing, detached garage that needed to be demolished. Additionally, a power pole sits on the property and we needed to incorporate easement access regulations and setback requirements for power lines.
In short order we developed a site plan to present our top-level intentions to the San Jose Planning and Building Departments for a green light.

Once the motivations and property are determined and a site plan gets approval from our architectural and design team (in coordination with city regulators), we set forth designing a floor plan.
Designing a smaller, but liveable space is really important. Think about it…smaller spaces require much greater attention to comfortable function and smart creativity, especially for long-term, family planning. Naturally, we take the floor planning very seriously as designers specialized in ADUs.
There are lots of best practices and places to start from, but for us, we’ve never built a single unit that did not require some customization. Why? Because everyone’s motivations, property, and requirements are different; understandably so. Just look at the Emersons. Historic District, Power Lines, dilapidated detached garage–not to mention four kids, two active parents, two aging grandparents, and a dog named Rusty (but he’s a good boy).
The Emerson floor plan needed to take several things into account. First of all, what kind of space did they actually need. The short answer was flexible. But what does that mean in terms of design? Long term think.
The floor plan first focused on easy accessibility for elderly family members.
The Emersons settled on a floor plan quickly, one that incorporated all of the above design considerations, as well as took into account their yard.
The Emersons wanted to maintain a lawn area so their young kids and good old Rusty the Dog (still a good boy) had a place to play. One of the challenges was coordinating with the city on the allowable positioning and footprint of their ADU, but we’ll walk through that in the next section.

You know how we mentioned that the rules and regulations are ever-changing? Well, we weren’t kidding. San Jose changed its rules 3 times in 2017 alone, and for the Emersons, that had an effect on strategy, specifically the setback and rear yard coverage rules.
Once the floor plan was completed, we began Detailed Design and Navigation. As ADU designers and builders, we specialize in navigating the regulations for the families we work with, so you’ve got a good amount of certainty that your project will be successful. In the case of the Emersons, we embarked upon Detailed Design to draft the Construction Documents, Structural Engineering, Title 24, Cal Green, and the laundry list of regulatory elements that are associated with every building project in California.
We also got into the nitty gritty of the Interior Design, which is always a fun and creative process. We worked with the Emersons and their budget to coordinate selections for nearly every element of their home before we broke ground. The process is simple. We chatted with Holly and Nick about what types of designs and elements charmed them. This process includes interviews, surveys, a walk through of the main home, and a curation of design elements, fittings, and fixtures that match both the charm the Emersons were looking for, as well as the budget.
If you remember, the Emerson home is also located in a Historic District, which means that there are requirements to match the historical aesthetics of the main home to varying levels. What does that mean? It means that there are certain absolute requirements and certain aspects that can be presented as tasteful alternatives for compliance on a case-by-case basis. Think window details and exterior aesthetics and colors.
The history of the home was a big part of the design selections that brought the whole project together, but there were also other, more functional elements that the Emersons valued.
Once Detailed Design finished, both construction documents and Interior Design selections were complete, the Acton ADU Architectural Team submitted the plans to the San Jose City Planning Department for permit. Once reviewed and approved, the team then took the plans the San Jose City Building Department. It’s important to note that ADUs have several sets of permits and city fees. When budgeting, the Emersons had to keep in mind: planning permits, building permits, parkland and school fees, addressing requirements, and a handful of additional smaller fees in order to secure the permits and break ground.

With the Permits in hand, the day had finally come to prepare the Emerson home for production.
The first step was to hold a Pre-Construction Conference. Our Production Manager sets up a time to visit the home, review the site again, this time with the Emerson’s Lead Carpenter (the Acton team member that manages every aspect of the physical build, so there’s only one neck to ring!)
About a week later, demolition and site preparation begin: trenching, foundation work, and laying and connecting utilities from the main home to the ADU. A benefit of new ADU regulations in California.
Once the plumbing, electrical, and framing begin (we refer to these as the rough trades), we also begin the process of mobilizing materials for the finish trades.
The home comes together quickly, and our team members are always communicating with the Emersons so they’re up to speed on milestones, opportunities, and challenges along the way.
Once complete, there’s a bit of a celebration. Holly and Nick join us for a photo and we set about staging and photographing the unit.

Within days, Holly and Nick are taking advantage of the new home. The bathroom is a huge hit, now that they have two. And Holly’s parents are already in the process of moving in. The family is closer now and there’s a peace of mind that comes from knowing how the next stage of their life is going to play out. Plus Rusty likes it too.
